-
5层框架结构教学楼,土木工程建筑结构毕业设计,长53.4米,宽15.0米,面积4087平方米
-
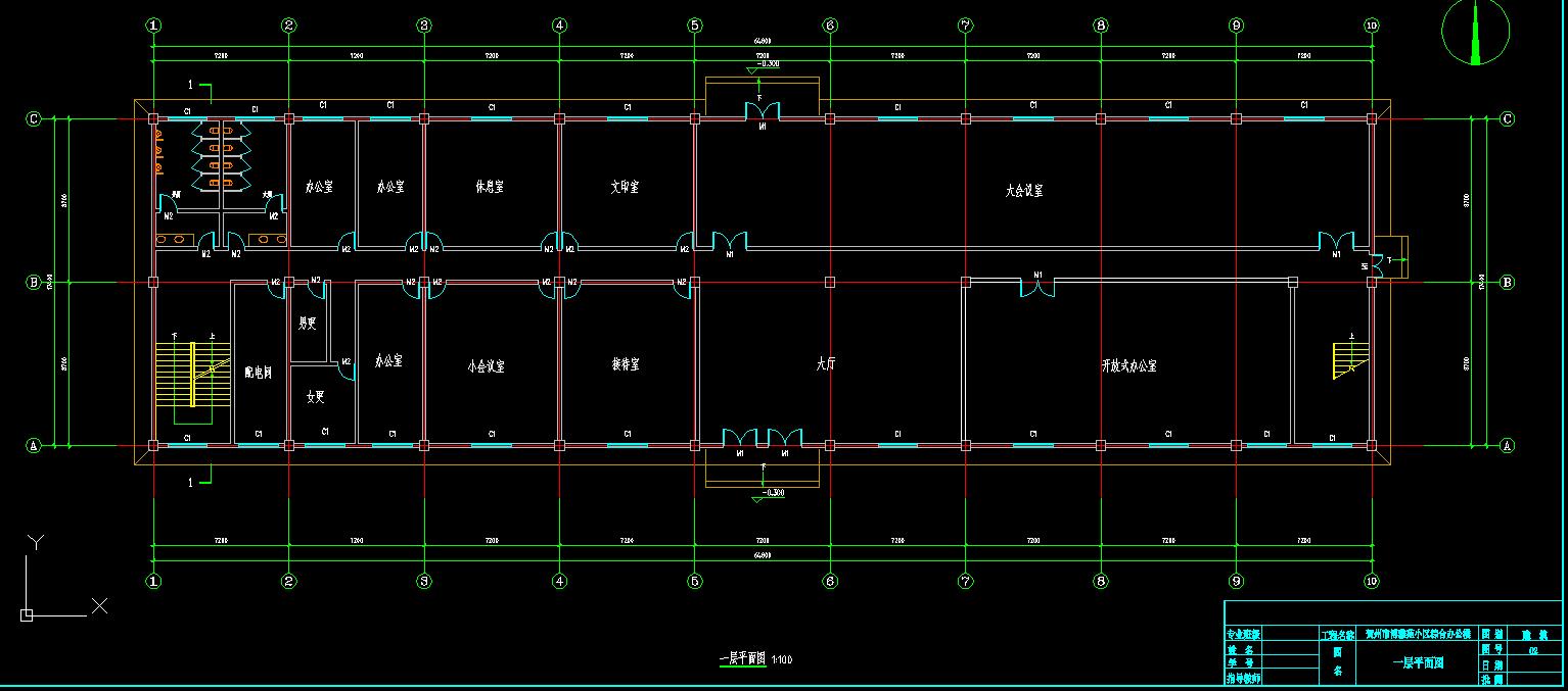
4层框架结构办公楼,土木工程建筑结构毕业设计,长65.700米,宽15.200米,面积3990平方米
-
6层框架结构教学楼,土木工程施工组织毕业设计,长米,宽米,面积4918平方米
-
6层剪力墙结构住宅楼,土木工程建筑结构毕业设计,长98米,宽13米,面积6365.19平方米
-
6层框架结构旅馆,土木工程建筑结构毕业设计,长39米,宽16.5米,面积5000平方米
-
5层框架结构旅馆,土木工程建筑结构毕业设计,长70.4米,宽15.6米,面积5889平方米